About
概要
概要
ニュース
Guide Line
ガイドライン
CDE
審査環境
ICBA確認申請用CDE
マニュアル
対応機関
Resources
参考
BIM図面審査サンプルモデル
説明会・基本操作/セミナー情報
よくある質問
参考サイト
Contact Us
お問い合わせ
ArchSync
ログイン
About
概要
概要
ニュース
Guide Line
ガイドライン
CDE
審査環境
ICBA確認申請用CDE
マニュアル
対応機関
Resources
参考
BIM図面審査サンプルモデル
説明会・基本操作/セミナー情報
よくある質問
参考サイト
Contact Us
お問い合わせ
ArchSync
ログイン
トップ
› CDE 審査環境 › ICBA確認申請用CDE
ArchSync「アークシンク」の機能紹介
IFCファイルビューイングを行う画面
✓ 見る方向を変更する機能、拡大・縮小の機能、任意の位置で軸方向に断面を切って表示する機能
✓ IFCデータの空間構成やオブジェクトのプロパティ情報を確認する機能
✓ 2点間の距離などをの計測機能
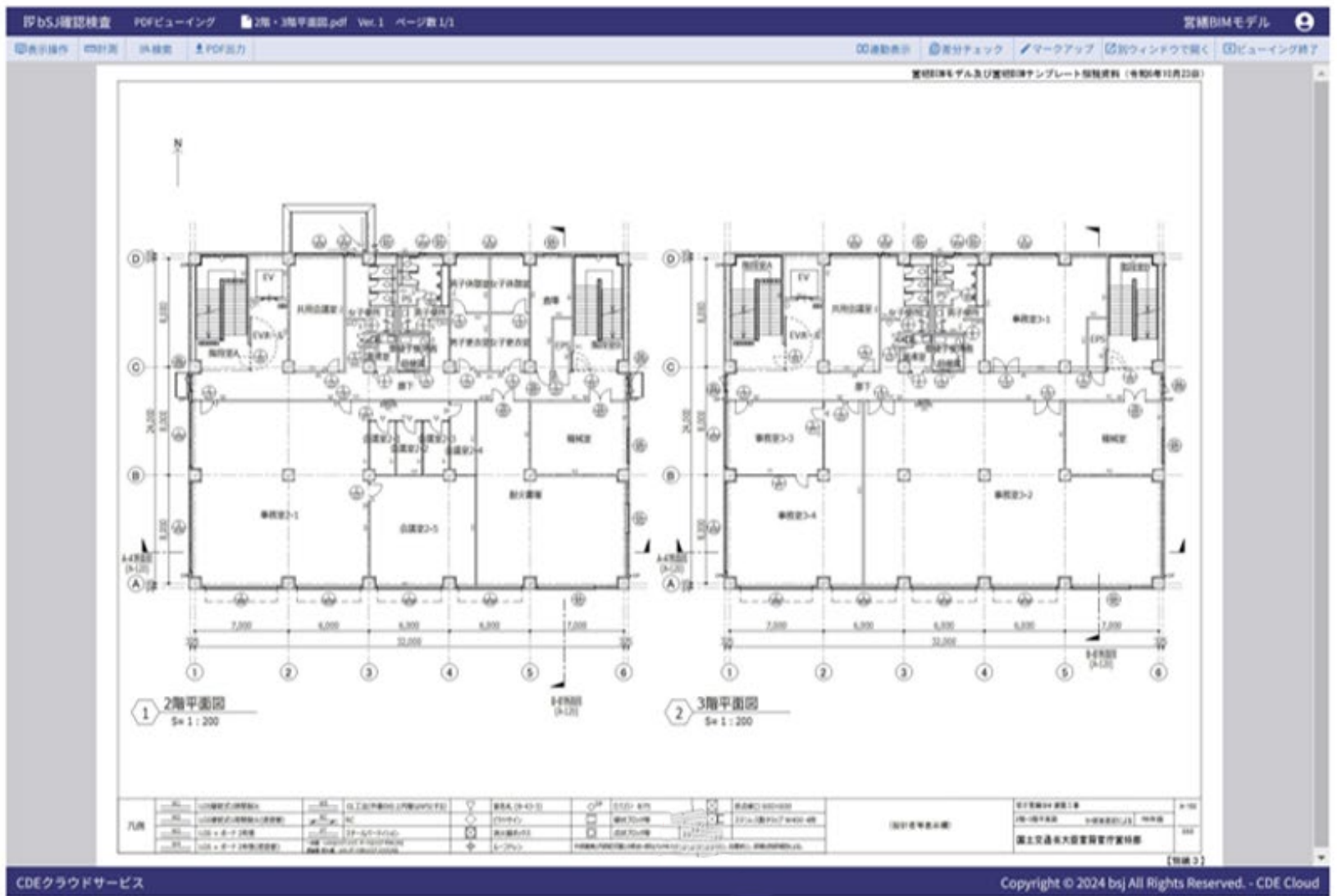
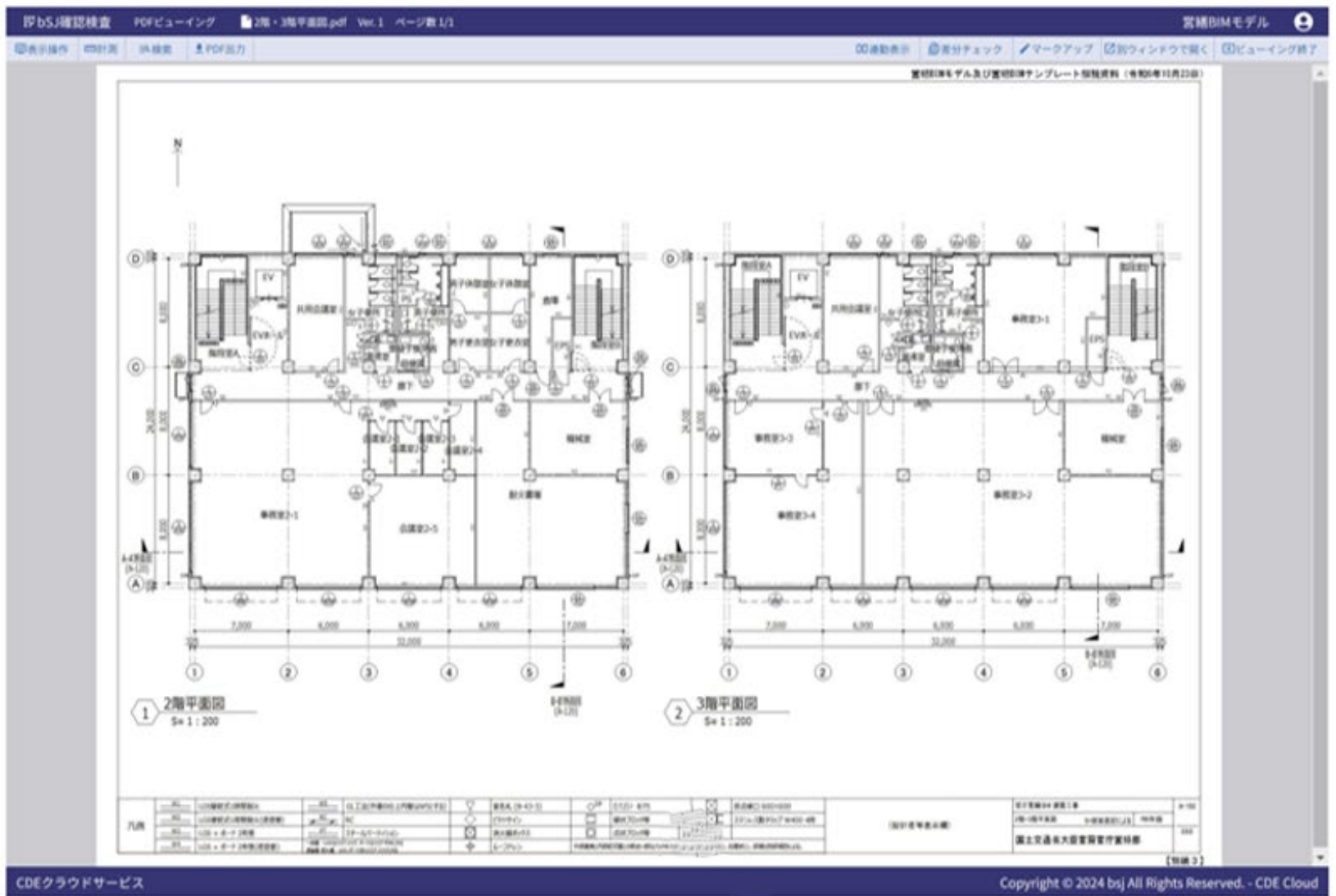
PDFファイルのビューイングを行う画面
PDFファイルのビューイングを行う画面で、表示位置の移動や拡大縮小等の操作を行うとともに、2画面(2ファイル)の連動表示機能、複数画面表示機能、2点間の距離等簡単な計測機能を備える。
ICBA確認申請用CDE「ArchSync」の利用環境・利用条件
動画:ファイルのアップロード及びIFCファイル等の閲覧
お問い合わせフォーム
よくある質問